Hirsihuvila Keima vaikka vakituiseen asumiseen
Hirsihuvila Keima
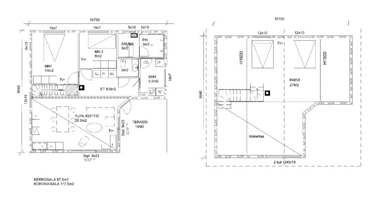
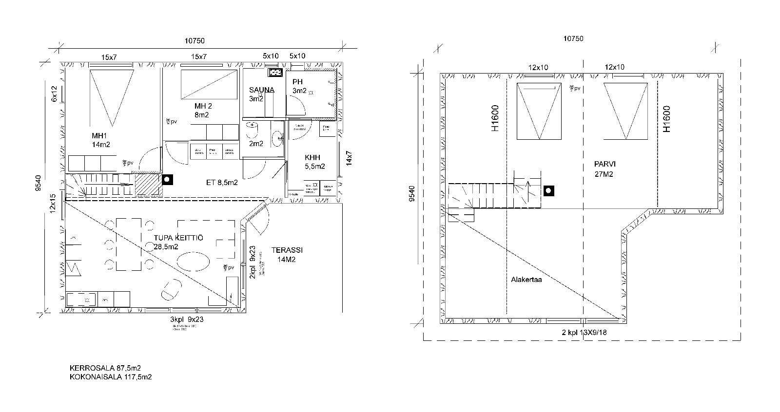
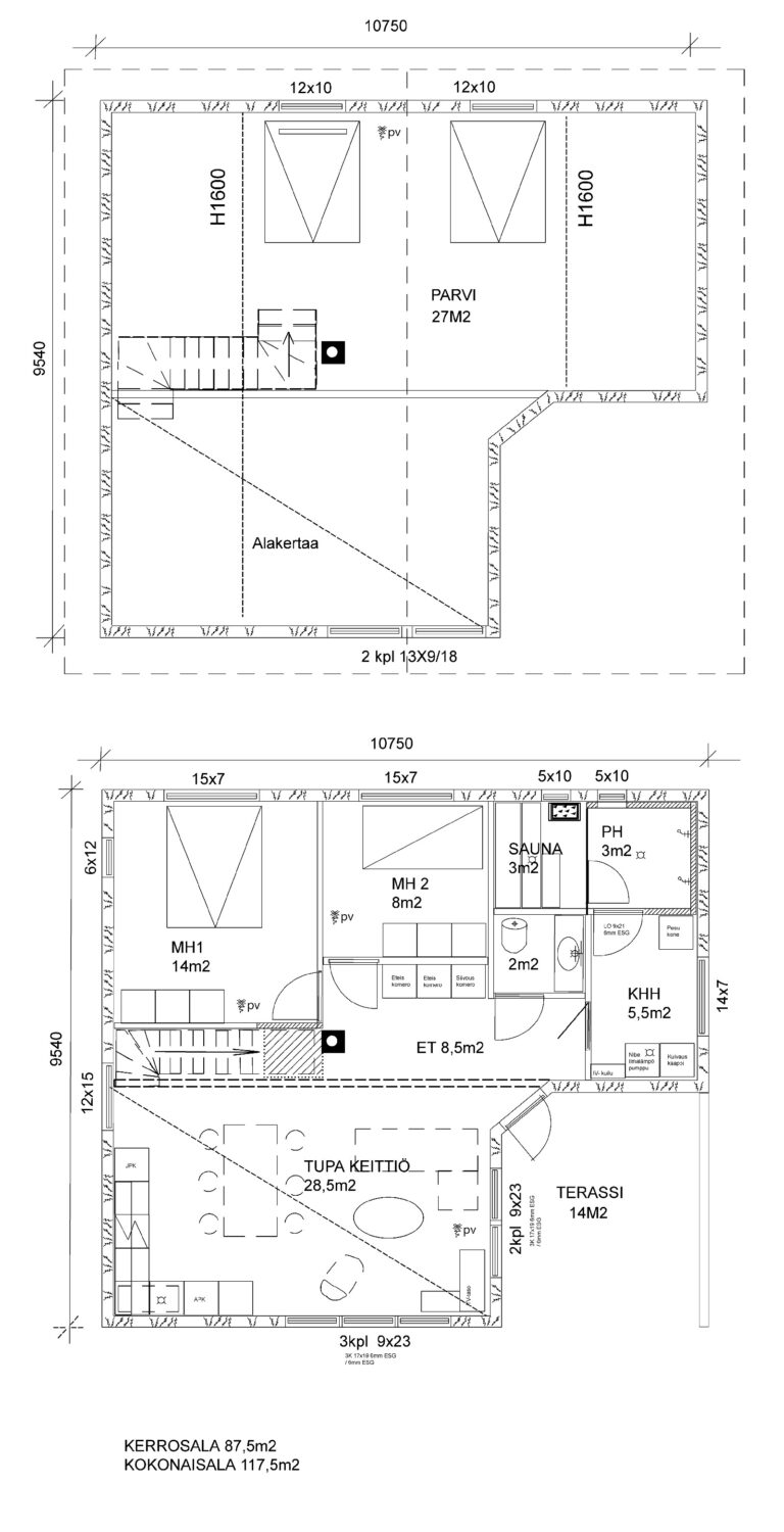
- Kerrosala 87,5 m²
- Kokonaisala 117,5 m²
- Huoneistoala 99,5 m²
KEIMA on valoisa, hieman alle sadan neliömetrin kokoinen massiivihirsihuvila, jossa on tilaa ja toimivuutta vaikka vakituiseen asumiseen. Kaksi makuuhuonetta tarjoavat mukavat puitteet lepoon, ja avaralta parvelta löytyy lisää nukkumatilaa. Avaran tupakeittiön korkea katto korostaa tilan tuntua, ja suuret ikkunat tuovat maiseman ja luonnonvalon kauniisti osaksi oleskelua.
Kokonaisuuden täydentävät sauna, pesuhuone sekä kodinhoitohuone, joka toimii samalla käytännöllisenä pukeutumistilana.
Piirustukset ja rakennekuvat
Hirsiseinäelementit:
- 200 mm massiivihirsi
- MSE-ikkunoilla ja kiinteillä ikkunoilla
- 10x21 ulko-ovi
Lattiaelementit
- 210 mm rossipohjaeriste + 100 mm XPS-eriste
- 80 mm betonivalu sähkölämmityksellä, laattalattia
Parvielementti
- vinyylilankku
- vanerilevy 18 mm
- äänieristys: Hunton-villa
- 14x120 mm sisäpaneeli, kuusi STP, kuultovahattu
Vesikattoelementit
- rivipeltikate tummanharmaa
- 300 mm uretaanieriste
- 14x120 mm sisäpaneeli, kuusi STP kuultovahattu
Väliseinät
- 92mm kipsilevyseinät maalipinnalla
- kosteantilan harkkoseinät laattapinnalla
- saunan seinät lämpöhaapa ja laipio tuppitervaleppälautaa
Terassielementit
- 120 mm lauta ruskea, painekyllästetty, sileä
Porraselementit
- 120 mm lauta, ruskea, painekyllästetty, sileä
Kaide-elementit
- 48x48 mm pystykaide
- 48x98 mm kaidelankku
Kiuas
- Sähkökiuas Harvia Cilindro PC70 Black Steel, 7kW, 6-10m³, kiinteä ohjaus
Takka
- Kaakelitakka Thorma Delia, varaava, 7,5 kw norsunluu
- Schiedel Rondo valmispiippu 180
Lauteet + varustet
- haapalankkulauteet
- saunajakkara
Sisäporras
- sisäportaat kaiteineen
Viemäröintivalmius
- 110mm:n viemäriputki liitäntää varten rakennuksen alla
Ovilukko ja painikkeet
Sähköistys (sähkövaraukset seinäelementeissä
Ulkovärjäys
Sisävärjäys
- Pilariperustus
- Rahtikulut (ilmoitetaan erikseen kaupanteon yhteydessä)
- Rakennuspaikalle johtava tie on oltava kuorma-autolla ajettavissa.
Me olemme LockCorner
Kaikki alkoi kulmasta, yksinkertaisesta mutta ratkaisevasta oivalluksesta, joka mahdollisti valmiit hirsiseinäelementit sekä täysin uudenlaisen rakennusprosessin. Oivalluksen takana on vuosikymmenten kokemus hirsirakentamisesta sekä taidosta tarkastella tuttua rakennetta uudella tavalla.






